Skip to Main Content

34' Luxury Singles

ARTIST'S CONCEPT
Elevation A Elevation B Elevation C

A
ELEVATION

B
ELEVATION

C
ELEVATION

The FERN

ELEVATION A

Elevation A - 2,775 sq. ft.
Elevation B - 2,775 sq. ft.
Elevation C - 2,769 sq. ft.

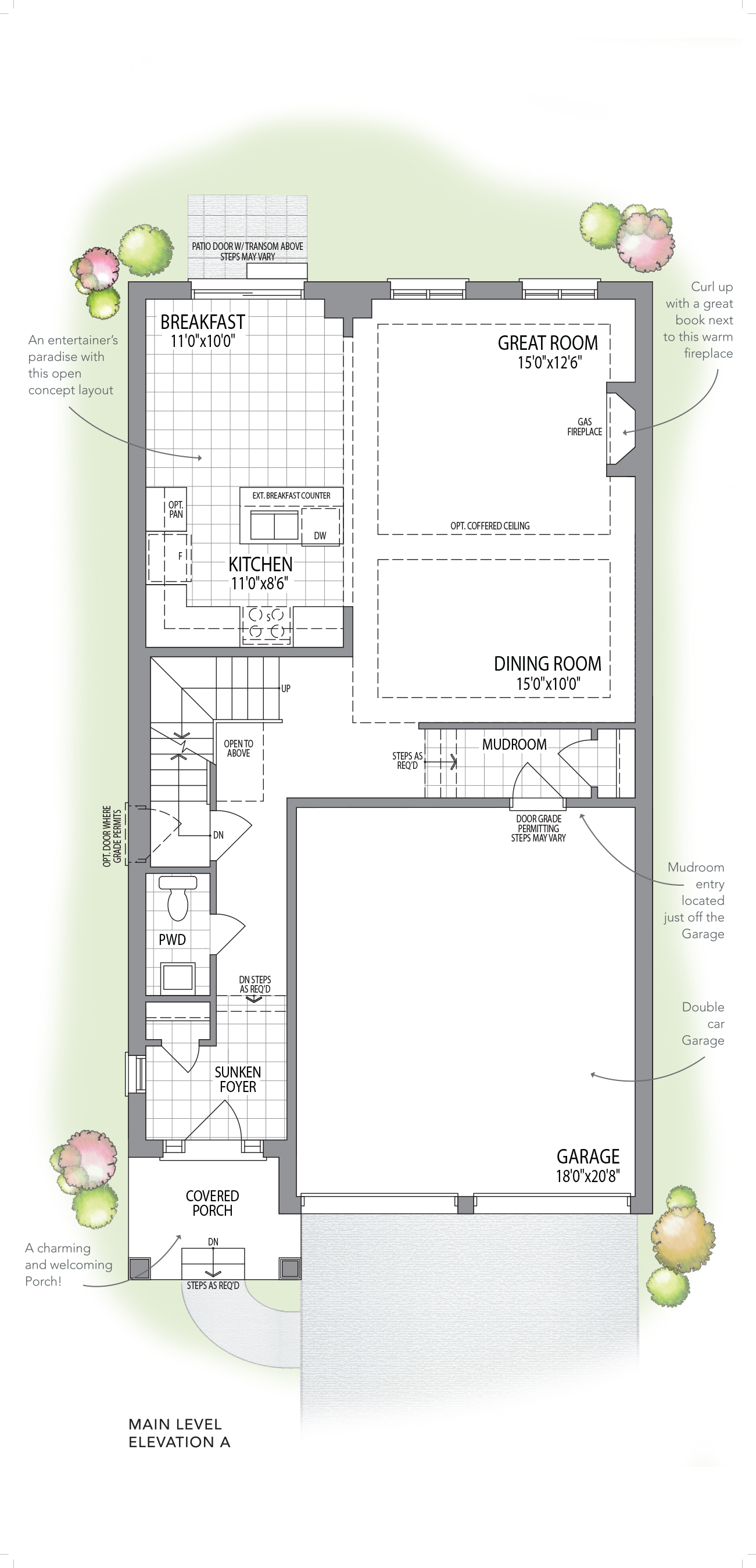
MAIN FLOOR

MAIN FLOOR

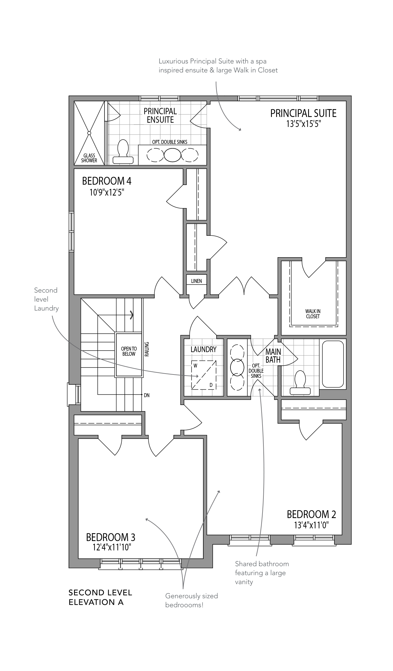
SECOND LEVEL

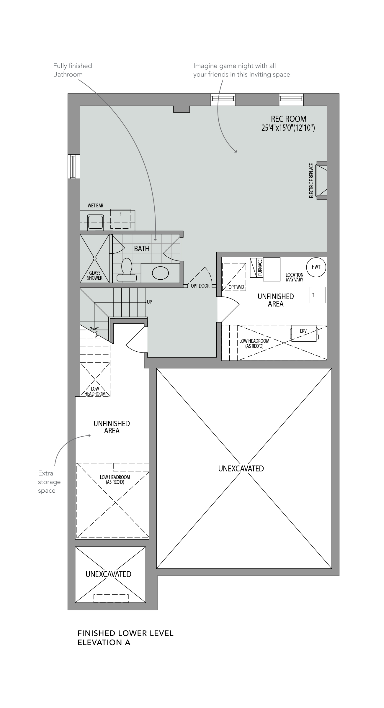
LOWER LEVEL

OPT. FINISHED LOWER LEVEL

Actual usable space may vary from stated area. Dimensions, specifications and architectural detailing are subject to change without notice E. & O.E. All renderings and landscape features are artist’s concept. Model S28-2193


View our online brochure

Making a difference
in our community

The Williamsburg Green Community will be making a donation to The Mikey Network on behalf of the residents that buy at Williamsburg Green. Together we can save a life, make a lasting difference and help the beat go on within our community.

LEARN MORE