Classic Collection
ARTIST'S CONCEPT
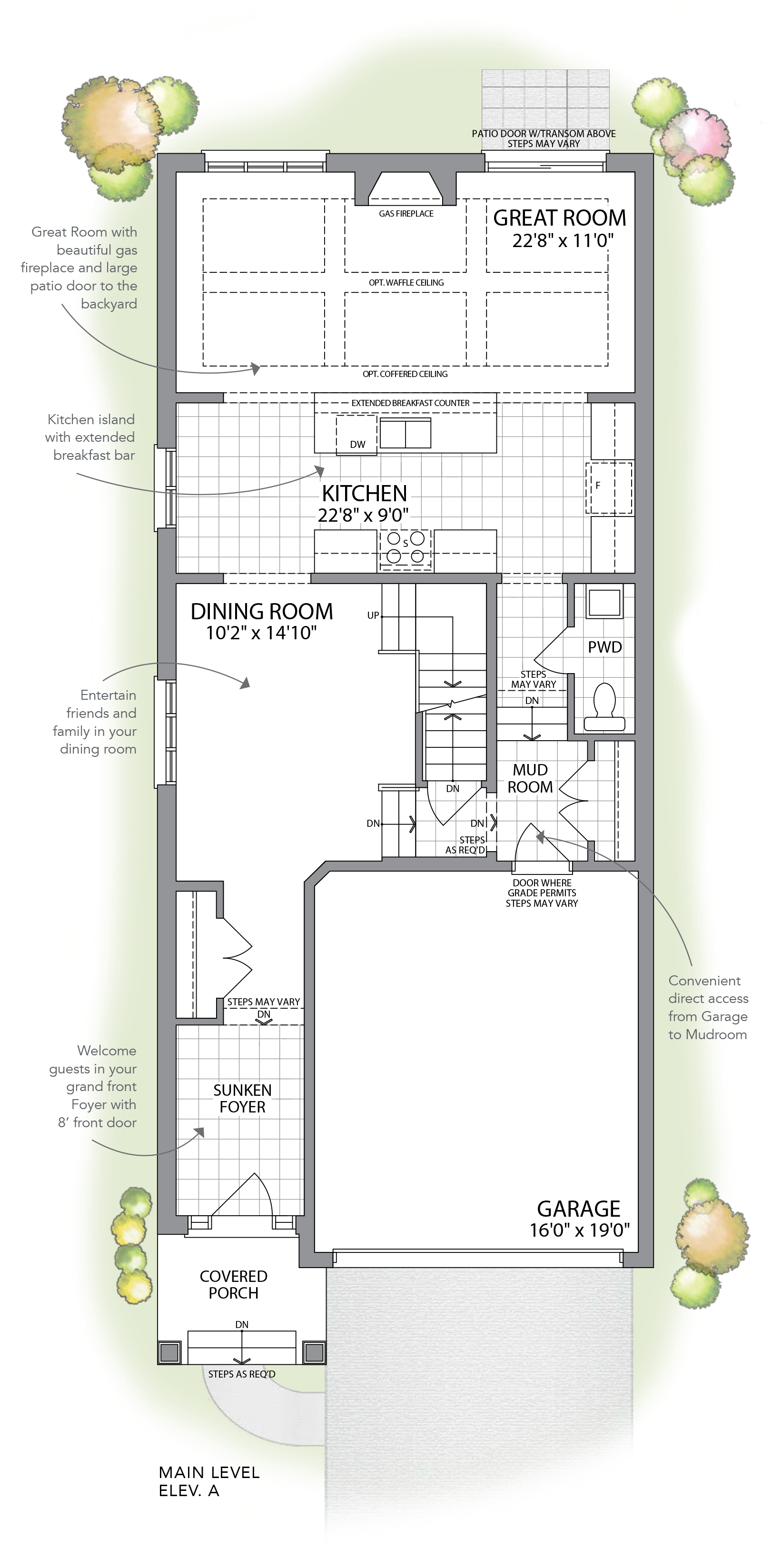
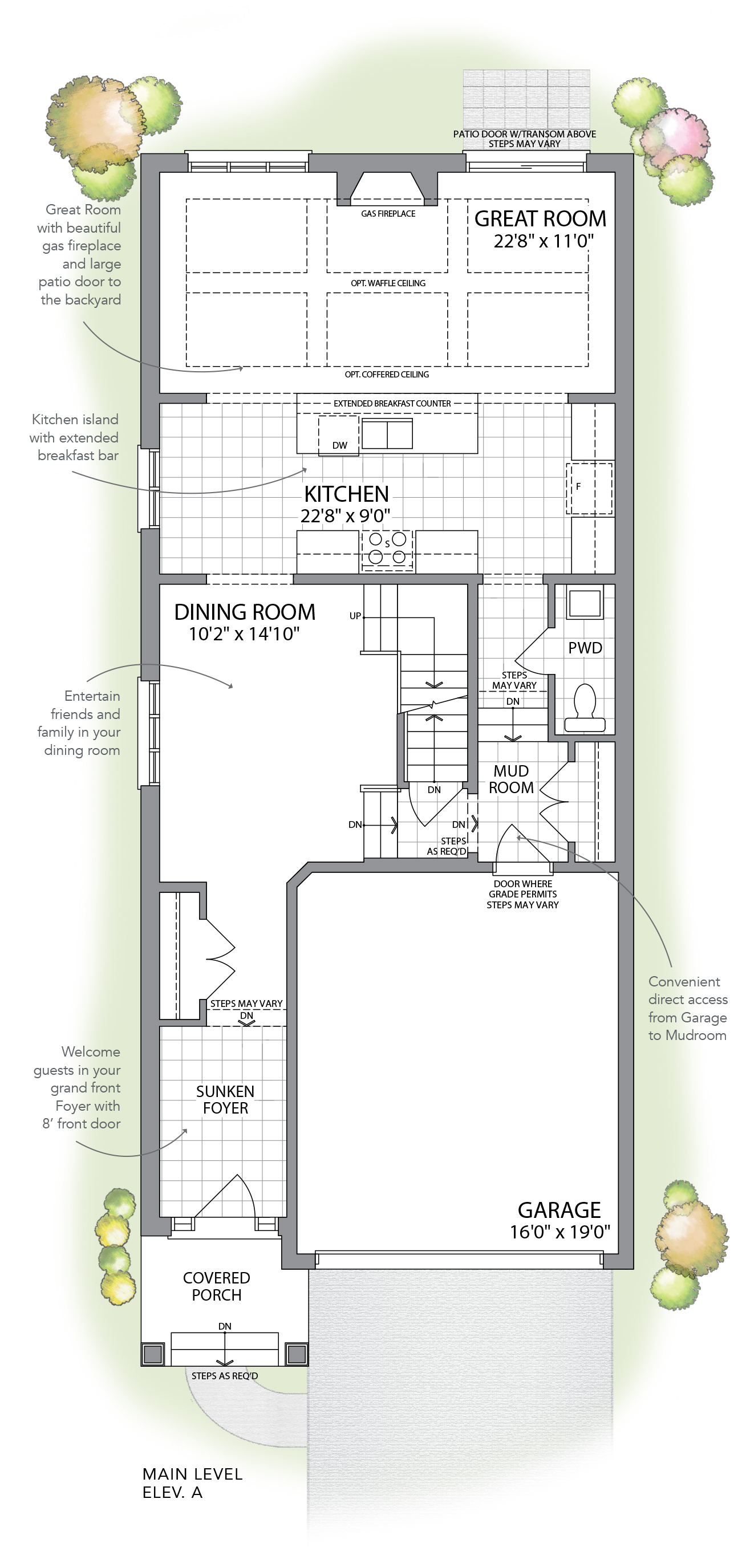
MAIN FLOOR

MAIN FLOOR

SECOND LEVEL

LOWER LEVEL

Actual usable space may vary from stated area. Dimensions, specifications and architectural detailing are subject to change without notice E. & O.E. All renderings and landscape features are artist’s concept. Model


Making a difference
in our community
The Williamsburg Green Community will be making a donation to The Mikey Network on behalf of the residents that buy at Williamsburg Green. Together we can save a life, make a lasting difference and help the beat go on within our community.
LEARN MORE