34' Luxury Singles
Classic Collection



A
ELEVATION
B
ELEVATION
C
ELEVATION
The Forest
ELEVATION A
Elevation A - 3,299 sq. ft.
Elevation B - 3,299 sq. ft.
Elevation C - 3,299 sq. ft.
Incl. Opt. 749 sq. ft. of finished lower level
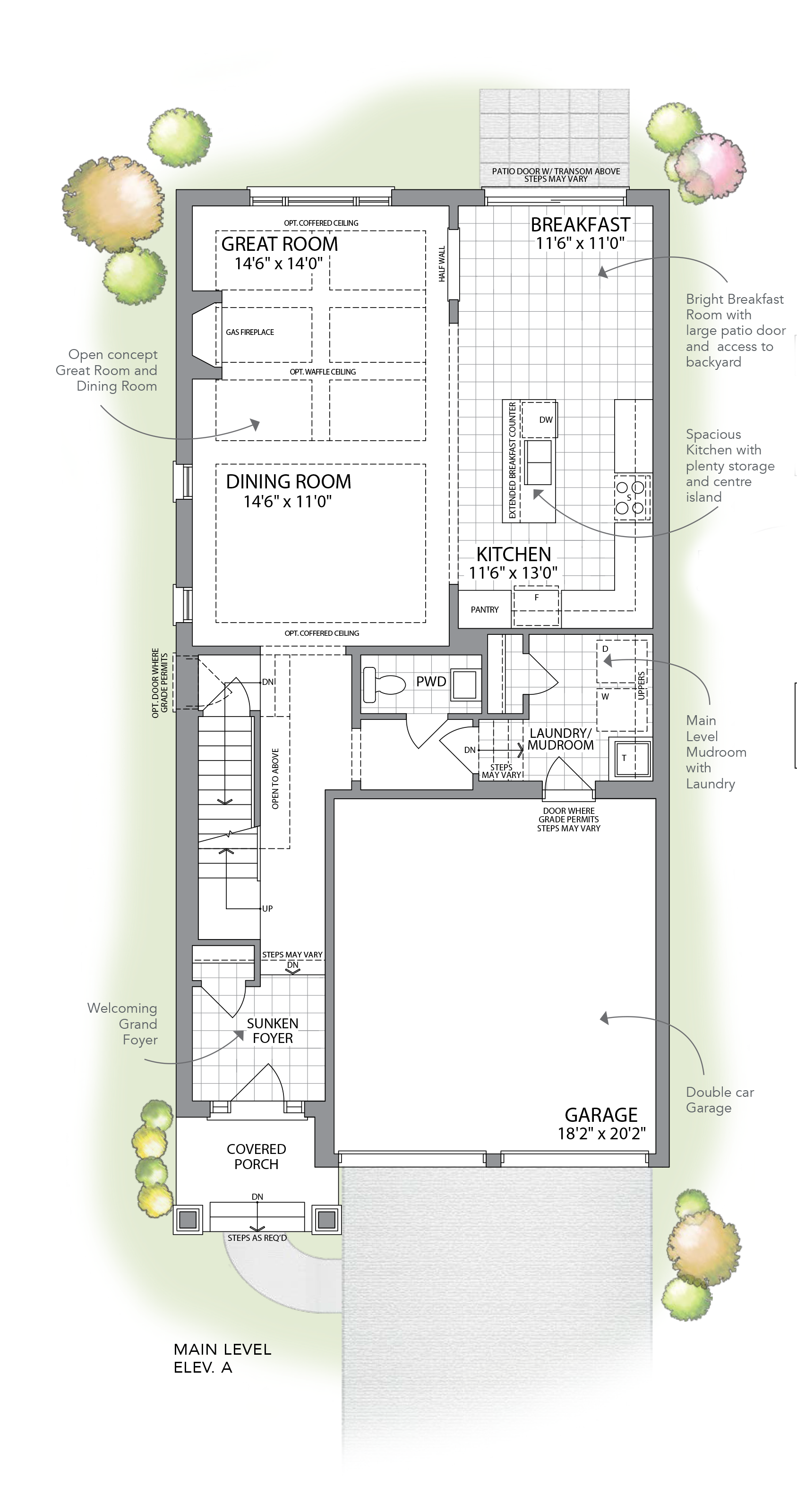
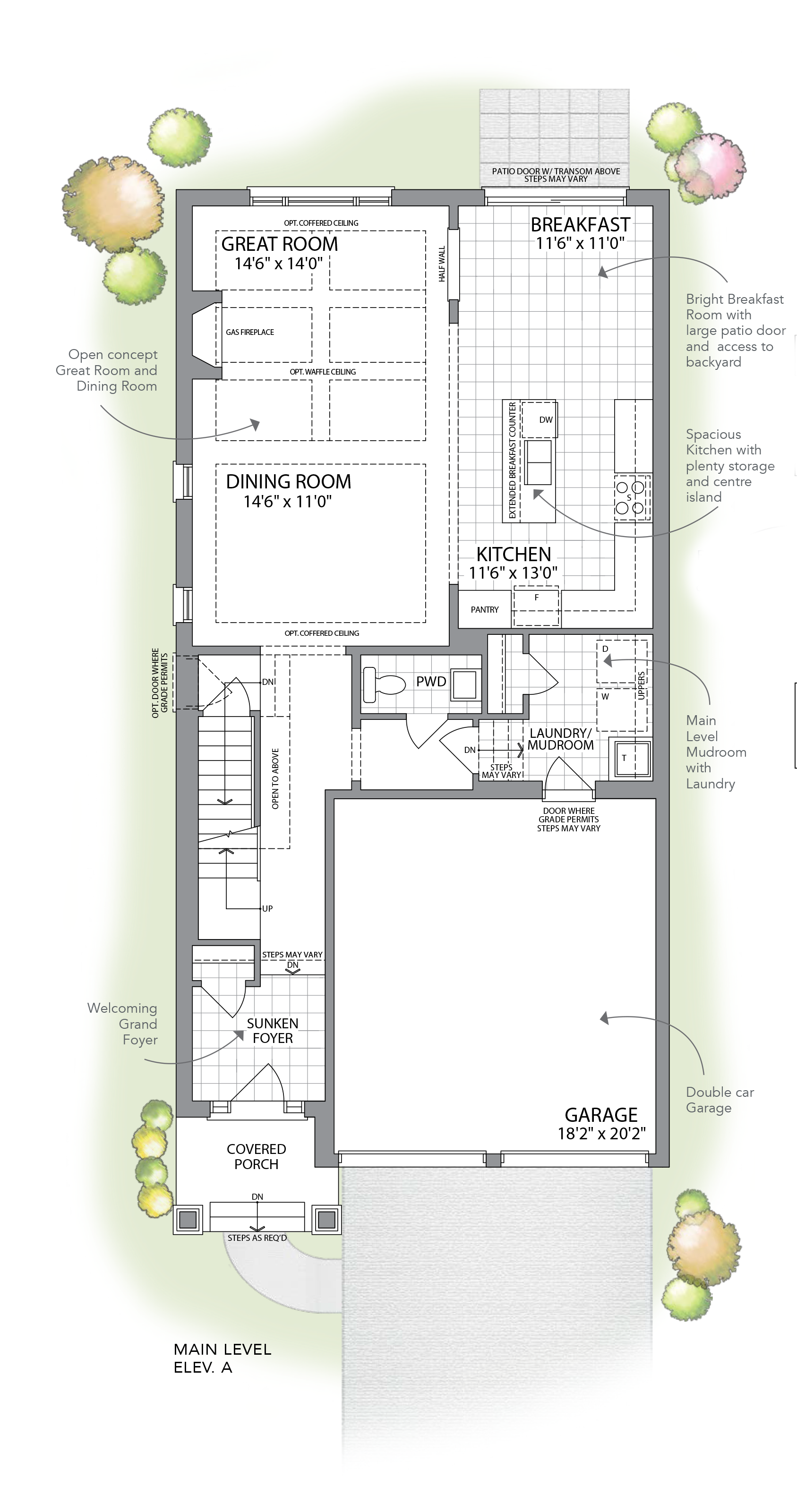
MAIN FLOOR

MAIN FLOOR

SECOND LEVEL

LOWER LEVEL

Actual usable space may vary from stated area. Dimensions, specifications and architectural detailing are subject to change without notice E. & O.E. All renderings and landscape features are artist’s concept. Model 28-2550


Making a difference
in our community
The Williamsburg Green Community will be making a donation to The Mikey Network on behalf of the residents that buy at Williamsburg Green. Together we can save a life, make a lasting difference and help the beat go on within our community.
LEARN MORE