40’ Luxury Singles
Classic Collection



A
ELEVATION
B
ELEVATION
C
ELEVATION
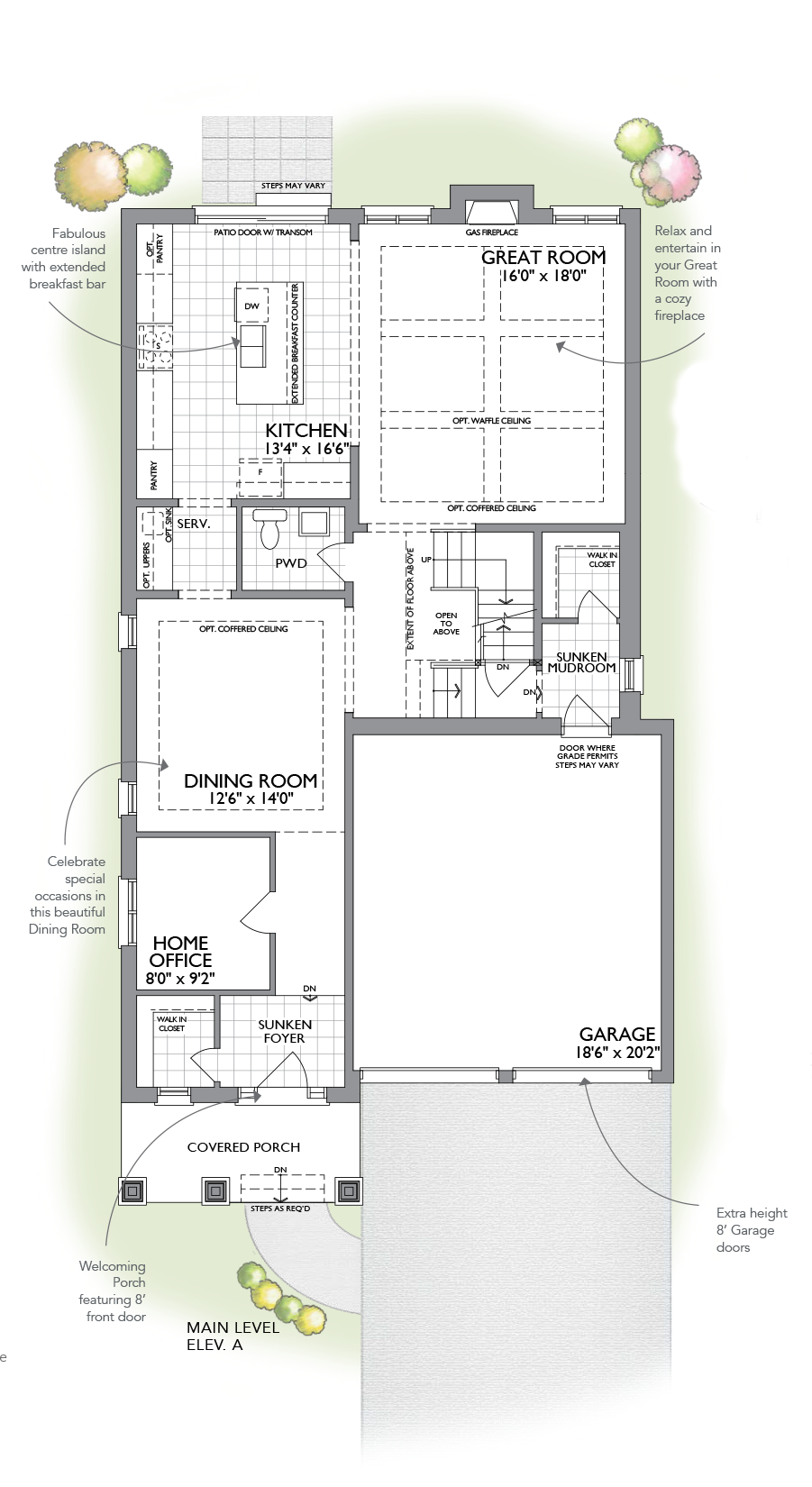
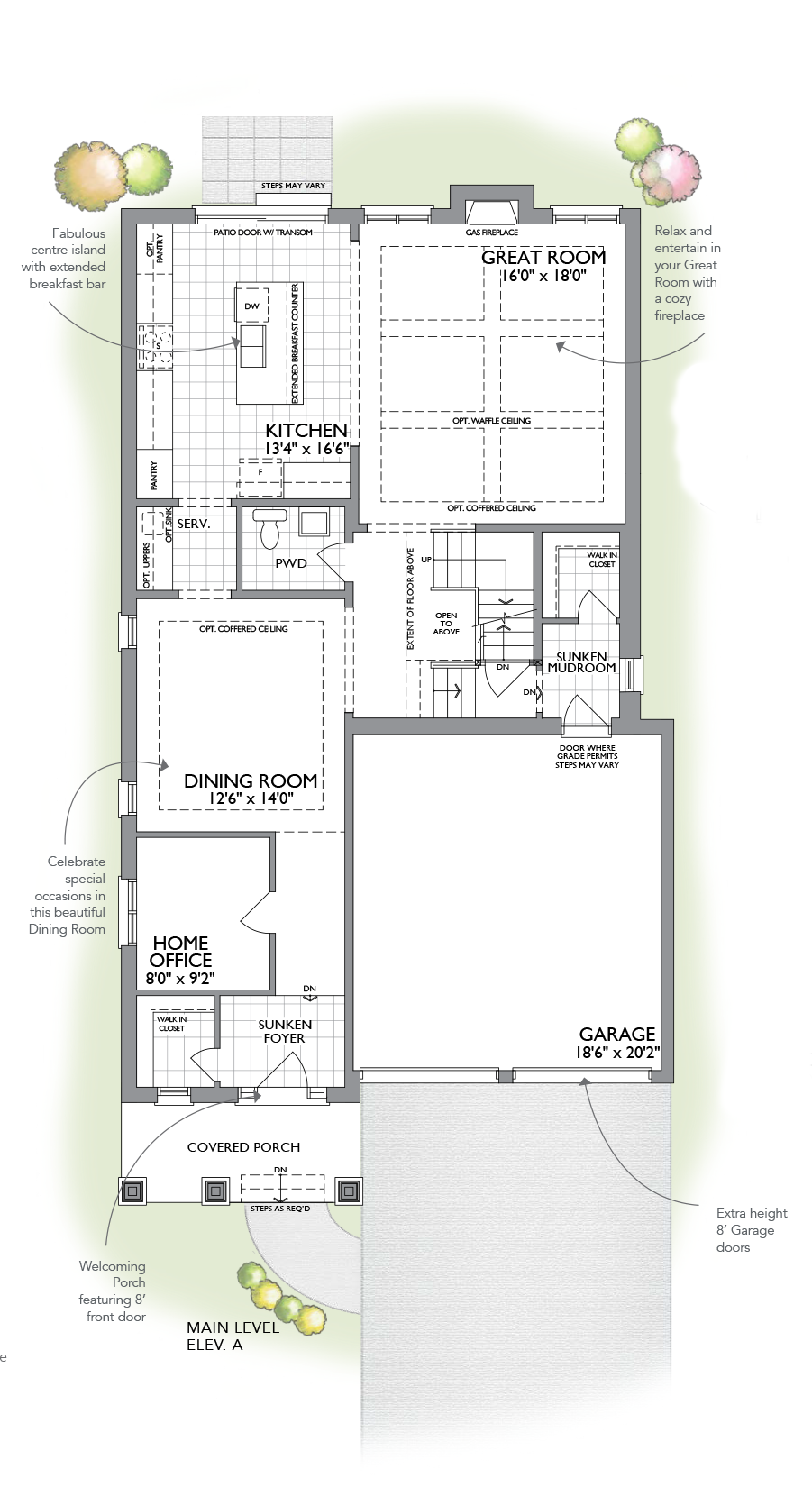
The Evergreen
ELEVATION A
Elevation A - 3,699 sq. ft.
Elevation B - 3,705 sq. ft.
Elevation C - 3,711 sq. ft.
Incl. Opt. 822 sq. ft. of finished lower level
MAIN FLOOR

MAIN FLOOR

SECOND LEVEL

LOWER LEVEL

Actual usable space may vary from stated area. Dimensions, specifications and architectural detailing are subject to change without notice E. & O.E. All renderings and landscape features are artist’s concept. Model 33-2877


Making a difference
in our community
The Williamsburg Green Community will be making a donation to The Mikey Network on behalf of the residents that buy at Williamsburg Green. Together we can save a life, make a lasting difference and help the beat go on within our community.
LEARN MORE