Skip to Main Content

34' Luxury Singles

Classic Collection

ARTIST'S CONCEPT
Elevation A Elevation B Elevation C

A
ELEVATION

B
ELEVATION

C
ELEVATION

The MINT

ELEVATION A

Elevation A - 2,482 sq. ft.
Elevation B - 2,486 sq. ft.
Elevation C - 2,486 sq. ft.

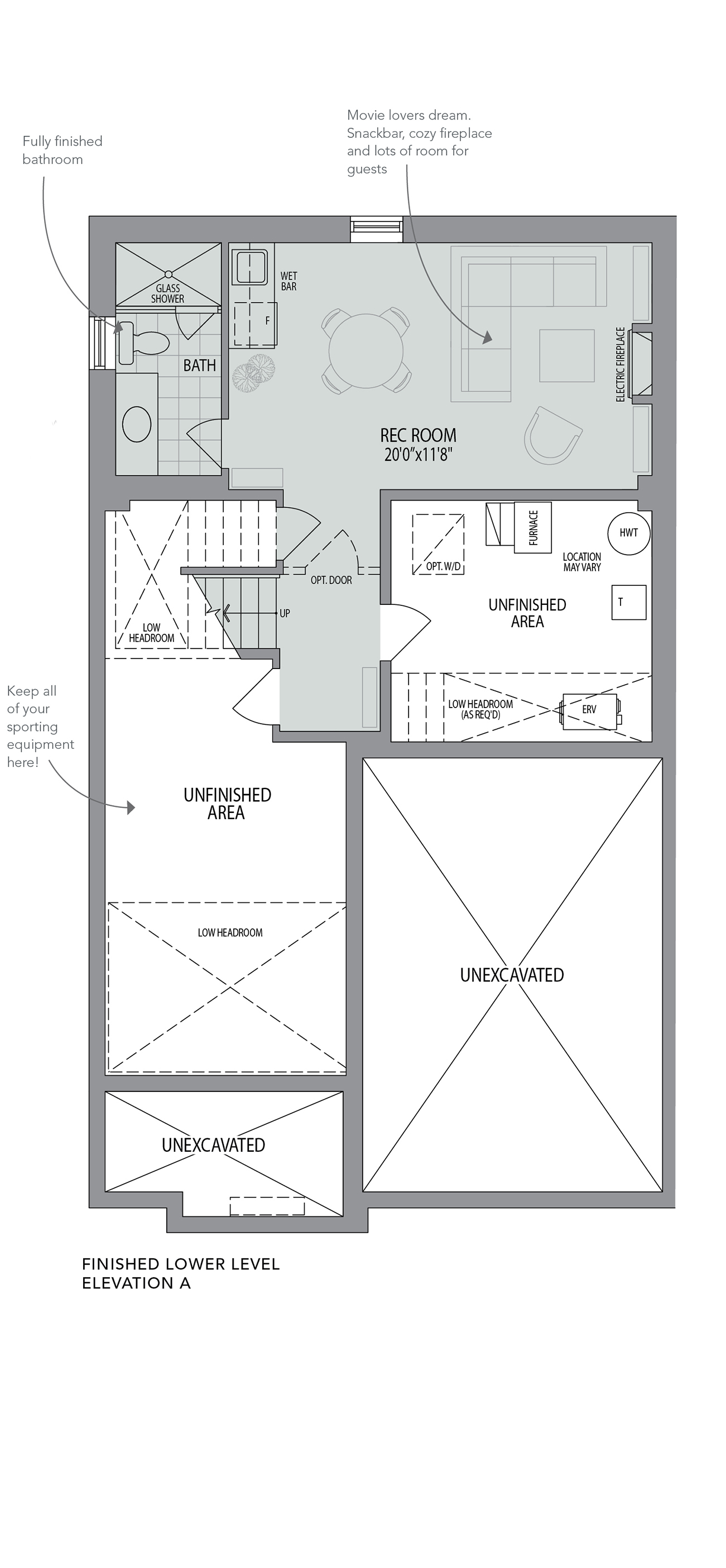
Incl. Opt. 427 sq. ft. of finished lower level

MAIN FLOOR

MAIN FLOOR

SECOND LEVEL

LOWER LEVEL

Actual usable space may vary from stated area. Dimensions, specifications and architectural detailing are subject to change without notice E. & O.E. All renderings and landscape features are artist’s concept. Model 28-2055


Making a difference
in our community

The Williamsburg Green Community will be making a donation to The Mikey Network on behalf of the residents that buy at Williamsburg Green. Together we can save a life, make a lasting difference and help the beat go on within our community.

LEARN MORE